海淀公租房来啦!通州增共有产权房!
京房字 2017-12-02
各位粉丝:
快到年底,各区最近都启动了公租房的配租,比如朝阳、房山、海淀。
其实在后台留言里,询问最多的区是哪个?
大家都能猜到。没错,是海淀!
今天,海淀的好消息来啦!海淀区住保办发布,启动该区第16批公租房租赁意向登记。
294套公租房面向海淀区备案家庭;还有127套面向非京籍的“新北京人”!
294套给海淀备案家庭
本次配租的公租房项目是燕保·温泉家园项目的剩余房源,该项目位于海淀区温泉镇温泉路。
月租金标准为32元/建筑平方米。租金包含物业费,不包含供暖费、水费、电费、燃气费、电话费、上网费、有线电视初装费等。
先说一下面向海淀区备案家庭的配租。
房源共有294套,其中小套型274套,建筑面积约34.45—38.43平方米。一套小户型的月租金1100元到1229元。
中套型20套,建筑面积约48.01—48.03平方米。租一套的月租金1530来块钱。
下面是哪些人可以租到。




127套给“新北京人”
再说说面向非京籍的,此次燕保·温泉家园项目剩余房源的30%,也就是127套,面向海淀区“新北京人”配租。
其中小套型118套,建筑面积约34.45—38.43平方米;中套型9套,建筑面积约48.01—48.03平方米。
参加“新北京人”配租的申请家庭需要满足下面的条件:


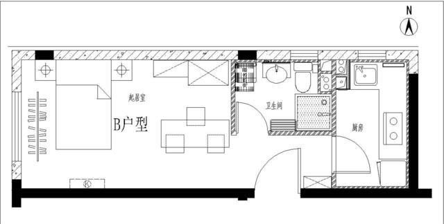
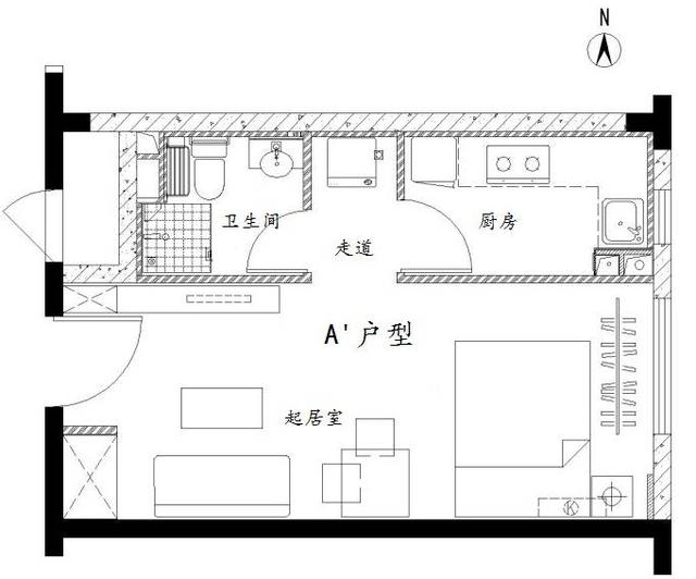
附送一下海淀区此次配租的房源户型图。

建筑面积:34.45-34.47㎡
房屋朝向:西北
房屋租金:1102.4-1103.04 元/月

建筑面积:38.41-38.43㎡
房屋朝向:A’东、A西
房屋租金:1229.12-1229.76 元/月

建筑面积:48.01-48.03㎡
房屋朝向:西南
房屋租金:1536.32-1536.96元/月
通州增一处共有产权房
另外通州也有好消息
北京保障房中心与通州区合资成立北京市燕东保障性住房建设投资有限公司。将全面参与城市副中心建设,参与完成155平方公里范围内棚户区改造、集体土地改革试点等重点工作。
位于通州区的武夷花园南区限价房将转化为共有产权住房!
该项目由北京武夷房地产开发有限公司开发建设,位于通州区潞城镇,东至六环辅路,南至紫运园北街,西至武夷花园东路,北至通胡大街。目前也拟定燕东公司负责项目具体实施。
共有产权住房的项目又增加了!
另外,目前通州区宋庄镇疃里村、梨园镇大稿村已列入集体土地租赁房的建设计划。
也就是说,这两处地方也将建设集体租赁住房。
【京房字】系列平台(包括但不限于微信、微博 、今日头条等)所采用信息均来自北京市政府、北京市属相关部门、部分非市属部门及可信任媒体等公开渠道;数据均来自北京市规划与国土委员会不动产登记事务中心、北京市土地整理储备中心、北京市住建委交易管理网、北京房地产业协会的公开数据统计与分析;所形成的报告、分析、研究成果或观点均由【京房字】相关后台及专家组成员编写,其准确性及预测性的观点,仅供参考。
【京房字】系列平台版权归【京房字】所有。【京房字】保留所有权利,未经本微信公共号系列平台正式许可与授权,任何个人或组织只可原文转发,不得以任何手段或形式窃取发布。如引用刊发,须注明出自【京房字】,且不得进行有悖原意的删节或修改,否则【京房字】将保留随时追究其法律责任的权利。另外,平台用户在【京房字】留言视为同意:【京房字】在不泄露个人信息(包括但不限于姓名、头像及其他隐私信息)的前提下,以部分或全部引用、截图等形式在【京房字】平台(包括但不限于微信、微博、今日头条等)运用。
【京房字】刊载信息内容或观点表达,并不构成对房地产投资、买卖的咨询建议,任何人因使用本平台所涉及信息、观点而导致直接或间接的投资或买卖损失,【京房字】不承担任何责任。
公信源于责任,权威造就品质!









